Первый этаж Главпочтамта в Киеве сдадут в аренду
Иллюстративное фото (kiev.yarmap.ua)
Первый этаж Главпочтамта сдадут в аренду за 760 тысяч гривен
В электронной системе реализации имущества выставили на продажу право аренды первого этажа Главпочтамта в Киеве. Об этом сообщается на сайте "ProZorro.Продажи".
Отметим, что начальная цена лота составляет 760 тыс. гривен, минимальный шаг увеличения цены - 40 тыс. гривен.
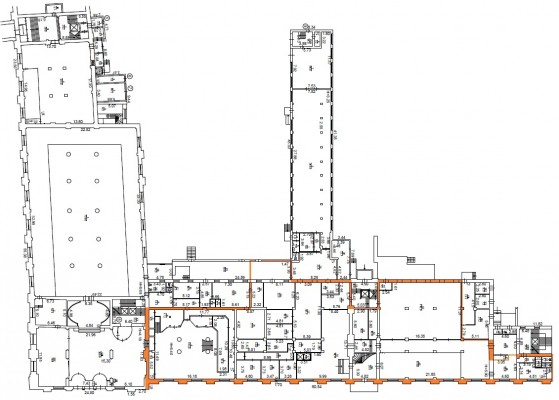
"Укрпочта" предлагает в аренду первый этаж Главпочтамта, общая площадь которого составляет 1510 квадратных метров.
"Электросеть нуждается в реконструкции. Со стороны внутреннего двора есть складские помещения с рампой. Заезд во внутренний двор с улиц Крещатик и Бориса Гринченко", - говорится в описании лота.
Фото (prozorro.sale)
Напомним, в Украине в июне стартовала приватизация небольших активов, которые не представляют стратегического значения для экономики - через систему ProZorro

